Wytyczenie ok. 200 działek budowlanych po obu stronach ul. Gdańskiej ma być odpowiedzią na wciąż rosnące zapotrzebowanie na grunty pod jednorodzinne budownictwo mieszkaniowe w Bytowie. Problemem są jednak koszty związane z uzbrojeniem terenu i wykupieniem gruntów pod drogi i infrastrukturę.
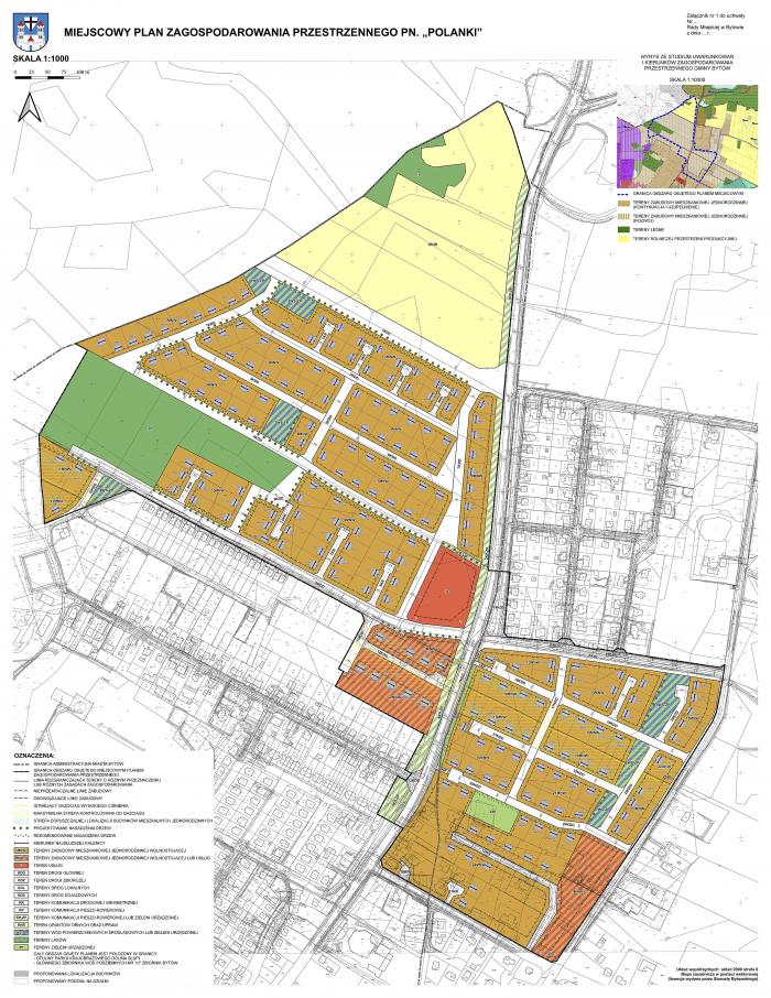
Prace nad miejscowym planem zagospodarowania przestrzennego pn. „Polanki” rozpoczęły we wrześniu 2023 r. Zadanie zlecono pracowni Urbanika Agaty Marciniak z Puszczykowa. Jej zadaniem jest jak najlepsze zaprojektowanie ok. 54 ha powierzchni bezpośrednio przylegającej do osiedli Rzepnica i Jeziorki. 30 grudnia projekt miejscowego planu zagospodarowania przestrzennego „Polanki" został wyłożony do publicznego wglądu.
Dyskusja publiczna nad projektem planu odbyła się 10 stycznia w Urzędzie Miejskim w Bytowie. Wywołała większe zainteresowanie niż inne tego typu projekty poddane konsultacjom. Na spotkanie z autorami planu i władzami miasta przyszło kilkadziesiąt osób. Na początku wszyscy wysłuchali garść podstawowych informacji. - Obszar objęty opracowaniem położony jest w północnej części miasta. W południowej jego części powstały już budynki na podstawie decyzji o warunkach zabudowy. W pozostałej części obszar ten styka się z terenem, na którym realizowane są nowe inwestycje. Obejmuje grunty rolne, zadrzewienia śródpolne oraz tereny leśne. Cały obszar położony jest w obrębie otuliny podlegającej ochronie krajobrazowej. Teren objęty opracowaniem w zdecydowanej większości jest niezabudowany. Jedyne grunty podlegające ochronie to obszary leśne i te w projekcie zostały zachowane. Większość terenu to grunty należące do osób fizycznych - rozpoczęła prezentację projektu planu Aldona Cieślak z firmy Urbanika.

W projekcie planu tereny pod zabudowę mieszkaniową zostały uzupełnione zabudową usługową lub mieszkaniowo-usługową. - Zaprojektowaliśmy też sieci dróg. Na północy mamy przebieg drogi zbiorczej, która w studium uwarunkowań i kierunków zagospodarowania przestrzennego jest wyznaczona jako obwodnica Bytowa - Aldona Cieślak wyjaśniała zapisy na wyświetlanej mapie. Projekt planu przewiduje też tereny zieleni i ciągów pieszo-rowerowych wzdłuż drogi wojewódzkiej oraz obszary nieprzeznaczone do zabudowy, czyli pod wody powierzchniowe oraz publiczne tereny zieleni urządzonej. - Zostały tak zaprojektowane, że można na nich realizować zbiorniki retencyjne. Zaplanowaliśmy też pasy zadrzewień w drogach publicznych oraz w miejscach spływu wód opadowych i roztopowych - mówiła urbanistka.
Projekt planu przewiduje podział na działki, których powierzchnia oscyluje wokół 1000 m2. - Wynika to przede wszystkim z ustaleń studium, które wskazuje, że na północy miasta może powstać zabudowa jednorodzinna nieintensywna - tłumaczyła Aldona Cieślak. Nie przekonało to właścicieli gruntów objętych planem, którzy nie ukrywali, że liczyli na możliwość wytyczenia mniejszych działek. Pytali m.in. o powody ograniczenia liczby działek. - Dlaczego minimalna powierzchnia działki w planie to 1000 m2, a na sąsiednim terenie objętym planem Przy Lesie II działki mogą mieć 800 m2? - pytała Magdalena Wasilewska. - Przeprowadziliśmy analizę ukształtowania terenu i możliwości realizacji zabudowy. Im gęstsza zabudowa, tym trudniej zabudować działkę - tłumaczyła autorka projektu planu „Polanki”.
Burmistrz Ireneusz Gospodarek zwracał uwagę na koszty. - To nie moja kwestia, gdzie i jaką działki będą miały powierzchnię. Interesuje mnie, ile w przyszłości będzie kosztowała infrastruktura, czyli sieci i drogi. Im więcej przyłączy, tym będzie drożej. Ten koszt zostanie na barkach gminy - mówił Ireneusz Gospodarek. W spotkaniu uczestniczyli też mieszkańcy, którzy już mieszkają na terenie objętym planem. - Kupiliśmy działki wraz z udziałem w drodze dojazdowej. Osoba, która nam to sprzedała, w żaden sposób jej nie przygotowała, dlatego teraz jest to dla nas duży problem. Wraz z sąsiadami na własny koszt ją wyrównujemy i utwardzamy. Wciąż pozostaje problem z wodą opadową, która zbiera się na drodze i psuje dojazd. Liczyliśmy, że przyjmowany plan miejscowy pozwoli nam tę sprawę uregulować. Jesteśmy skłonni przekazać gminie drogę w darowiźnie, aby w pierwszej kolejności przeprowadzić tam jakąś inwestycję - mówiła Marlena Jaworska. Do złożenia wniosku w tej sprawie zachęcał architekt miejski. - Myślę, że złożenie wniosku o przekształcenie drogi z wewnętrznej na publiczną dojazdową może być asumptem do dyskusji na temat przejęcia tej drogi przez gminę. Myślę, że przyjęcie planu to dobra okazja do tego - powiedział Leszek Neubauer.
Na spotkaniu nie mogło zabraknąć odniesienia do analizy finansowej, która przewiduje, że w ciągu 10 lat, mimo naliczonych opłat adiacenckich i innych podatków, Gmina Bytów „dołoży” do terenu objętego planem nawet 90 mln zł. - Jako radny zdaję sobie sprawę, że miasto powinno przyjmować takie plany, aby stworzyć warunki do osiedlenia się w naszym mieście. Niepokoi jednak fakt, że miasto musi wyasygnować tak dużą kwotę na wykup gruntów pod drogi. Nie wydaje mi się, że wiążą się z tym aż tak duże kwoty. Osiedle dla 800 mieszkańców przyniesie duży skutek dla miasta. To proces inwestycyjny na 20 lat, dlatego aż trudno uwierzyć, że odbędzie się to z tak dużym minusem - mówił radny miejski Tomasz Franciszkiewicz. O 9 mln zł, które miasto będzie musiało przeznaczyć na wykup gruntów pod drogi, pytał Marcin Jaworski. - Jaka jest powierzchnia tych gruntów i przewidywany koszt, bo docierają informację, że cena ma wynieść 100 zł za 1 m2. Skąd wzięła się kwota 108 mln zł, które gmina Bytów będzie musiała wydać, jeżeli plan miejscowy „Polanki” zostanie uchwalony? - pytał. - Planem miejscowym uruchamiane są nowe tereny inwestycyjne. Wiąże się to z koniecznością budowy nowej infrastruktury, w tym wodociągów, kanalizacji, oświetlenia, nawierzchni dróg i chodników itd. Większość gruntów jest prywatna, dlatego do wykupu zostały przyjęte nie tylko tereny pod drogi, ale też pod zieleń urządzoną, wody powierzchniowe oraz ścieżki pieszo-rowerowe wzdłuż drogi wojewódzkiej. Przyjęliśmy kwotę 100 zł za 1 m2. Co do wartości poszczególnych inwestycji, to przyjęliśmy dane z podobnych przedsięwzięć w innych gminach. Przedstawiliśmy poziom wielkości, który jest realny - zapewniała Aldona Cieślak.
Wydatków nie zrekompensują wpływy do kasy Gminy Bytów z tytułu przyjęcia planu miejscowego. Pochodzić będą m.in. z opłaty od wzrostu wartości nieruchomości, z tytułu podziału nieruchomości, opłaty związanej z budową infrastruktury technicznej oraz podatku od nieruchomości.
Część uczestników spotkania zwracała uwagę na korzyści płynące z przyjęcia planu, jednak nie ukrywała obaw o dalszy los projektu. - Uważam, że plan jest dobrze wykonany. Spowoduje uwolnienie dużej ilości terenów mieszkaniowych i zatrzymanie wzrostu wartości nieruchomości. Mam jednak pewne obawy. Chodzi o te 90 mln zł. Uważam, że ten koszt gminy jest stanowczo zawyżony. Władze miasta wiedzą, jaki był koszt wybudowania infrastruktury na Osiedlu Bajkowym i sąsiednim terenie. Łącznie zamknęło się to w kwocie 10 czy 20 mln zł. Jeżeli autorzy planu jeszcze raz tych kosztów nie przeanalizują i kwota się nie zmniejszy, to część radnych nie zagłosuje za uchwaleniem planu, bo stwierdzi, że miasta nie stać na ten plan - ostrzegał Piotr Kaszubowski. - Koszt przyjęcia planu byłby mniejszy, gdyby właściciele terenów przekazywali gminie działki pod drogi za darmo - mówił wiceburmistrz Przemysław Kraweczyński. Część uczestników spotkania poddawała w wątpliwość sens przyjmowania kolejnego planu dla Bytowa. - Czy ma sens przyjmowanie kolejnego planu miejscowego w Bytowie w sytuacji, kiedy stare plany nie zostały w pełni zrealizowane. Czy nie przyjmiemy kolejnego planu, który skończy na półce? - zadał pytanie Krzysztof Wirkus. - Na dzień dzisiejszy inwestycje można realizować na podstawie planu miejscowego lub decyzji o warunkach zabudowy. Na tym terenie powstały już budynki na podstawie warunków zabudowy. Złożono też kolejne wnioski o wydanie takich decyzji. Celem tego planu jest uregulowanie tej sytuacji, wyznaczenie układu komunikacyjnego i rozgraniczenie terenów pod zabudowę od gruntów przeznaczonych pod zbiorniki retencyjne. Wszystko po to, aby stworzyć rozwiązanie systemowe. Chodzi o uruchomienie tego obszaru pod inwestycje w sposób racjonalny - przekonywała Aldona Cieślak.
Plan miejscowy „Polanki" uwzględniać ma też nową drogę zbiorczą, która docelowo połączy ul. Gdańską z Dąbiem, Przyborzycami i Świątkowem. W trakcie dyskusji pojawiły się wątpliwości co do konieczności wytyczenia tak szerokich pasów drogowych, a co za tym idzie wysokich kosztów związanych z ich wykupieniem. - Rozwiązaniem jest zmiana wszystkich dróg publicznych na drogi wewnętrzne. Skutek jest taki, że zostaje uchwalony plan miejscowy bez kosztów dla gminy - mówiła Aldona Cieślak.
Pod koniec spotkania pojawiło się pytanie dotyczące zapisów szczegółowych planu. - W projekcie jest zapis, że dachy mają być strome w kolorze ceglastym oraz matowe wykończenia pokrycia dachowego. Jak należy to rozumieć? - pytał Piotr Kaszubowski. - Kolor dachu to jest jedna rzecz, a wykończenia mają być matowe - wyjaśniała Aldona Cieślak. - Czyli założyliście, że wszystkie dachy na całym terenie będą miały jednakowy kolor ceglasty. Moim zdaniem wyklucza to realizację nowoczesnej bryły budynku i dopuszcza tylko klasyczne – ustosunkował się do tego Piotr Kaszubowski.
Dyskusja zakończyła się po ponad 2 godzinach. Do 3 lutego można wnosić uwagi do projektu planu. Uchwała o jego przyjęciu ma trafić na sesję Rady Miejskiej w Bytowie jeszcze w pierwszym kwartale tego roku. Z pewnością towarzyszyć będzie temu gorąca dyskusja radnych.
Chcesz być na bieżąco z wieściami z naszego portalu? Obserwuj nas na Google News!
Twoje zdanie jest ważne jednak nie może ranić innych osób lub grup.
Komentarze mogą dodawać tylko zalogowani użytkownicy.A zarobią na tym wszystkim na czysto pani Danuta Gawarecka i Cyferka kosztem podatników czyli wszystkich nas! Nie za dobrze? Stać na to gminę?
A zarobią na tym wszystkim na czysto pani Danuta Gawarecka i Cyferka kosztem podatników czyli wszystkich nas! Nie za dobrze? Stać na to gminę?